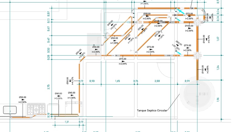
HIDRÁULICA
Evite retrabalho, vazamentos, pressão insuficiente ou desperdício de água.
Problemas que podem custar até 15% a mais no orçamento final da sua construção.
Em caso de falha nas instalações, a ausência de um projeto hidráulico técnico válido pode invalidar garantias da construtora e isolar o proprietário como único responsável por custos de reparo.
ECONOMIZE COM SEGURANÇA
✅ Invista em um projetista hidráulico com formação reconhecida e experiência comprovada. Um projeto bem elaborado reduz o consumo de materiais (tubos, conexões, bombas), evita desperdícios hídricos e garante conforto e durabilidade aos usuários.
✅ Exija projetos hidráulicos desenvolvidos em plataformas técnicas originais (ex.: Autodesk Revit MEP, WaterCAD, EPANET, HidroCálculo, CYPE Hidro) com memorial descritivo conforme as normas da ABNT, compatibilização com arquitetura e instalações elétricas, e dimensionamento hidráulico baseado em simulações realistas de uso.


PROJETOS HIDRÁULICOS DE QUALIDADE
❌ Não arrisque com “projetos” feitos apenas em CAD 2D sem análise de pressão dinâmica, velocidade do fluxo ou previsão de golpe de aríete.
❌ Não aceite plantas hidráulicas sem especificações claras de materiais, sem memorial de cálculo ou sem assinatura do responsável técnico com ART registrada.


Software de procedência duvidosa ou projetista despreparado?
Softwares irregulares, versões estudantis ou planilhas genéricas não consideram as condições reais de uso, padrões de consumo por tipo de edificação ou variações de pressão na rede pública. Isso leva a:
Subdimensionamento de reservatórios, perda de carga excessiva, ruídos e vibrações nas tubulações, risco de contaminação cruzada na rede de água potável. Essas falhas violam os princípios do Código de Ética Profissional do Engenheiro (Resolução Confea nº 1.073/2014) e comprometem a rastreabilidade técnica exigida pelas normas ABNT.
Não aceite projetos hidráulicos sem:
❌ Comprovação de licença válida do software (número de série, contrato de manutenção ativo);
❌ Memorial descritivo com vazões de projeto, pressões mínimas e máximas, e critérios de dimensionamento conforme NBR 5626 e NBR 16097;
❌ Detalhamento de pontos críticos (ex.: sistema de recalque, reservatórios elevados, proteção contra refluxo);
❌ Assinatura digital do profissional com ART registrada no CREA.


Exija projetos hidráulicos com:
✅ Modelagem BIM integrada (compatibilização com estrutura, elétrica e arquitetura);
✅ Relatório hidráulico com carimbo do software original (ex.: logotipo, versão, licença);
✅ Simulação de cenários de uso (horário de pico, falha na rede pública, demanda simultânea);
✅ Análise de eficiência hídrica (previsão de consumo, reuso de águas cinzas, captação de chuva, se aplicável);
✅ Utilização de softwares validados academicamente e tecnicamente (ex.: Revit MEP, WaterCAD, EPANET, CYPE Hidro).


Responsabilidade
Responsabilidade não é opcional. Exija software original, cálculos verificáveis e responsabilidade técnica.



